Auction details:Thursday 23rd October 2025 @ 08:30AM
✨ To place a bit and more info go to web side link ✨
A vacant freehold three storey semi detached property in need of refurbishment, which may have potential for HMO subject to obtaining the necessary licence
✨ Property Description:
A semi detached property which stands back from the road behind a driveway and foregarden.
✨ Accommodation:
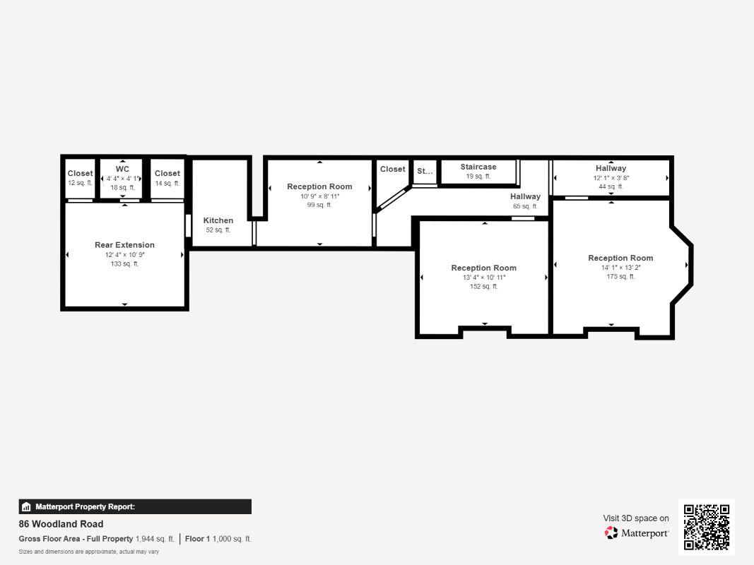
**Ground Floor: Entrance Hall, Two Reception Rooms, Bedroom, Kitchen, Rear Store.
**First Floor: Landing, Three Bedrooms, Bathroom/WC.
**Second Floor: Attic Bedroom.
**Outside: Gardens, Driveway Parking and Side Garage.The property is in need of complete modernisation/refurbishment throughout.
Overview
Features:
- Energy Performance Rating: G
- Council Tax Band: D
- Tenure
- Freehold – Vacant possession upon completion.
- ✨Pre-auction Offers: Please note that offers in excess of the guide price may be considered prior to the Auction Sale.




Leave feedback about this